Villa singola in vendita

Lazise, Via Ortigara - Colà
€ 470.000
Prezzo aggiornato
4 locali 4 locali
140 Mq 140 Mq
2 bagni 2 bagni

Villa singola in vendita

Lazise, Via Ortigara - Colà

Descrizione annuncio

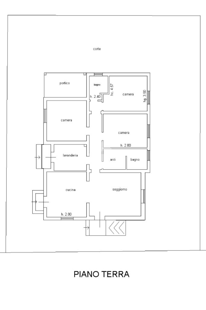
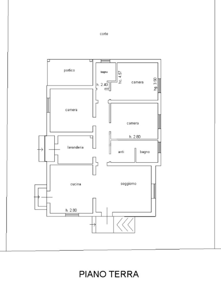
COLA' - In contesto tranquillo e residenziale, a breve distanza dal parco termale di Villa Cedri, proponiamo in vendita villetta singola completamente ristrutturata nel 2003, sviluppata interamente su un unico piano.

L' immobile si compone di un soggiorno luminoso e ampio con cucina abitabile, tre camere da letto, di cui due matrimoniali, due bagni, uno con vasca idromassaggio e doccia, e locale lavanderia.

La distribuzione degli spazi risulta funzionale e ideale per famiglie o per chi desidera una soluzione comoda, priva di barriere architettoniche, infatti affaccia su un giardino privato e piantumato che circonda la casa, perfetto per i momenti di relax all' aperto.

Completa la proprietà una tettoia per due posti auto coperti.

La recente ristrutturazione e la presenza del cappotto isolante, garantiscono un buon livello di comfort abitativo e un immobile pronto per essere vissuto senza necessità di ulteriori interventi. E' presente anche l 'impianto di climatizzazione e la predisposizione per allarme.

Soluzione ideale come abitazione principale o casa vacanze in una delle zone più richieste del lago di Garda.

Per ulteriori informazioni o per fissare una visita contattaci!

Mostra tutto

Nelle vicinanze

Trasporto pubblico Trasporto pubblico
Trasporto pubblico
700 m
Cola' Piazza Pozzo
Cola' Piazza Pozzo
750 m
Ricariche auto elettriche Ricariche auto elettriche
Quellenhof Luxury Resort
2,3 Km
Farmacia Farmacia
Farmacia
700 m
Farmacia Fratelli Pietropoli
2,7 Km
Supermercati Supermercati
Supermercato
660 m
Minimarket
2,4 Km
Supermercati
2,9 Km
Negozi Negozi
Negozi
720 m
La Bottega del Pane
2,8 Km
Bar Bar
Il Colosseo
2,4 Km
Bar
2,7 Km
Bar sportivo Sandrà
2,9 Km
Tiki Beach Bar
3,0 Km
Beach bar cafè
3,0 Km
Ristoranti Ristoranti
Pizzeria Fantasia
270 m
Luigina
730 m
Camporosso
850 m
Le Caldane
930 m
Autogrill
1,3 Km
Mostra tutto

Caratteristiche

Rif.:
61166898
Piano:
Terra di 1
Totale piani:
1
Posti auto:
2
Camere da letto:
3
Arredamento:
Parziale
Mostra tutto
Prezzo Prezzo
€ 470.000
Rata mutuo Rata mutuo
€ 2.233 / mese
Spese annue Spese annue
€ 0
Proponi il tuo prezzoProponi il tuo prezzo

Classe Energetica

D
D
D
D
D
D
D
D
D
EP globale non rinnovabile:
163.78 kW h/m² anno
EP globale rinnovabile:
0.00 kW h/m² anno
EP invernale del fabbricato:
EP estiva del fabbricato:
Anno di costruzione:
2003
Riscaldamento:
Autonomo
Tipo impianto:
A radiatori
Tipo alimentazione:
Metano

Prezzo ridotto di €1 (4%%)

Ti interessa visionare l'immobile?

Fissa un appuntamento  Fissa un appuntamento

Richiedi informazioni

Clicca su Leggi per aprire l'informativa
* Questi campi sono obbligatori

Calcola il tuo mutuo

Semplice e senza impegno
Anticipo

( % )
Mutuo

( % )

pochi semplici passi

inserisci i tuoi dati
Questionario completato
Grazie per aver richiesto un appuntamento senza impegno con un nostro Consulente del Credito e Assicurativo.

Hai inserito correttamente tutti i dati necessari e a breve riceverai una e-mail con un link da convalidare per inviare i tuoi dati.
Affiliato
La Polena Srl
Via Rubinare, 8 37017 Lazise (VR)

Il nostro staff


  • Marta Tomè
    Coordinatrice

  • Stefano Pachera
    Affiliato

  • Antonio Drago
    Affiliato

  • Natascia Dreer
    Collaboratrice

  • Annaclaudia Pachera
    Collaboratrice
Via Rubinare, 8 37017 Lazise (VR)
Zona: Lago di Garda - Lazise - Colà - Pacengo - Pastrengo
Mostra su mappa
Orari: dal lunedì al venerdì 09.00-12.30 15.00-19.30 - sabato chiusura ore 18.00
Affiliato
La Polena Srl
Via Rubinare, 8 37017 Lazise (VR)

2026 Tecnocasa Franchising S.p.A. - P. IVA 08365160152 - Via Monte Bianco 60/A 20089 Rozzano (MI). Ogni agenzia ha un proprio titolare ed è autonoma. Privacy policy | Policy utilizzo | Cookie policy